Espace propriétaire
fr

Votre recherche

Lissieu (69380)

100 m²

Plateau de bureaux de 100m² à Lissieu, zone Techlid

950 € / mois HT - HC*
Ref : VALCO30006583
Découvrir le bien

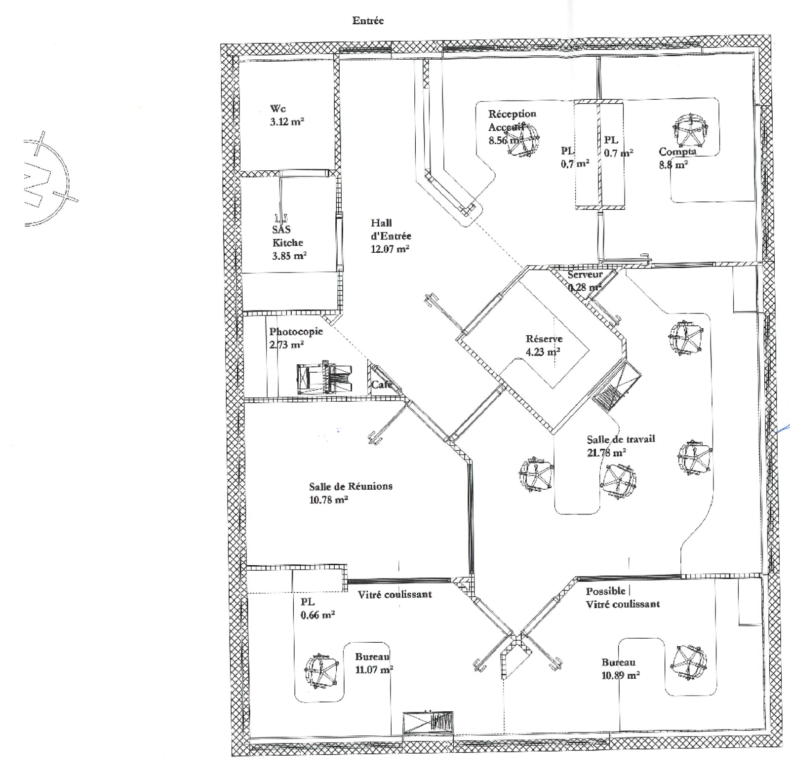
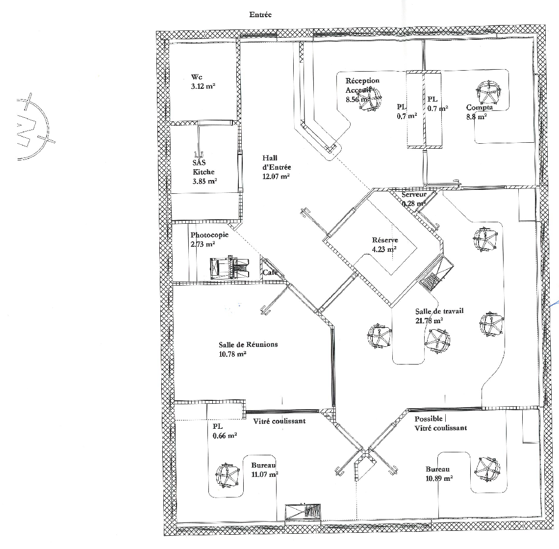
À LOUER - Plateau de bureaux de 100 m² à Lissieu, zone Techlid, parc d'activité tertiaires du Bois Dieu.
Découvrez ce plateau de bureaux en bon état situé dans la dynamique zone Techlid à Lissieu.
Caractéristiques principales : Surface : 100 m² - Rez-de-chaussée d’un immeuble de 2004 - Accueil - Open space aménagé - Plusieurs bureaux individuels - Un coin kitchenette - 4 places de parking privatives incluses.

Idéal pour accueillir vos équipes dans un environnement fonctionnel et confortable.

Localisation :Facile d’accès, proximité autoroutes M6 et A89.

Loyer: 950€ HT/mois hors charges - Charges: 500€/mois (charges de copropriété + Chauffage/climatisation + eau froide et eau chaude). Taxe foncière: 1400€/an.

Disponible immédiatement.

TRAD_ZEPHYR_Caracteristique TRAD_ZEPHYR_Valeurs
Type de transac Bureaux
Code postal 69380
Nombre de niveaux 1
Superficie (m²) 100
TRAD_ZEPHYR_Caracteristique TRAD_ZEPHYR_Valeurs
Mode de chauffage Electrique
Type de chauffage Air pulsé
Format de chauffage Collectif
Année de construction 2004
TRAD_ZEPHYR_Caracteristique TRAD_ZEPHYR_Valeurs
Copropriété NON
TRAD_ZEPHYR_Caracteristique TRAD_ZEPHYR_Valeurs
Loyer HT 950 € / mois
Honoraires HT charge locataire 1 710 €
Dont état des lieux Non renseigné
Dépot de garantie Non renseigné
DPE GES
Contacter pour ce bien
L'agence
Téléphone 04 69 84 15 15
Adresse
19 rue des Rosiéristes 69410 Champagne-au-Mont-d'Or

* Champ obligatoire

Les informations recueillies sur ce formulaire sont enregistrées dans un fichier informatisé par La Boite Immo agissant comme Sous-traitant du traitement pour la gestion de la clientèle/prospects de l'Agence / du Réseau qui reste Responsable du Traitement de vos Données personnelles. La base légale du traitement repose sur l'intérêt légitime de l'Agence / du Réseau. Elles sont conservées jusqu'à demande de suppression et sont destinées à l'Agence / au Réseau. Conformément à la loi « informatique et libertés », vous disposez des droits d’accès, de rectification, d’effacement, d’opposition, de limitation et de portabilité de vos données. Vous pouvez retirer votre consentement à tout moment en contactant directement l’Agence / Le Réseau. Consultez le site https://cnil.fr/fr pour plus d’informations sur vos droits. Si vous estimez, après avoir contacté l'Agence / le Réseau, que vos droits « Informatique et Libertés » ne sont pas respectés, vous pouvez adresser une réclamation à la CNIL. Nous vous informons de l’existence de la liste d'opposition au démarchage téléphonique « Bloctel », sur laquelle vous pouvez vous inscrire ici : https://www.bloctel.gouv.fr Dans le cadre de la protection des Données personnelles, nous vous invitons à ne pas inscrire de Données sensibles dans le champ de saisie libre.
Ce site est protégé par reCAPTCHA, les Politiques de Confidentialité et les Conditions d'Utilisation de Google s'appliquent.

Découvrir nos outils