Espace propriétaire
fr

Votre recherche

Lyon (69003)

5 pièces - 132 m²

RARE - Maison en duplex inversé avec jardin - Montchat 69003

799 000 €
Ref : VSVDU420006423
Découvrir le bien

VMA Immobilier vous présente un bien EXCEPTIONNEL au coeur de Montchat,

au prix de 799 000€ (hors place de parking)

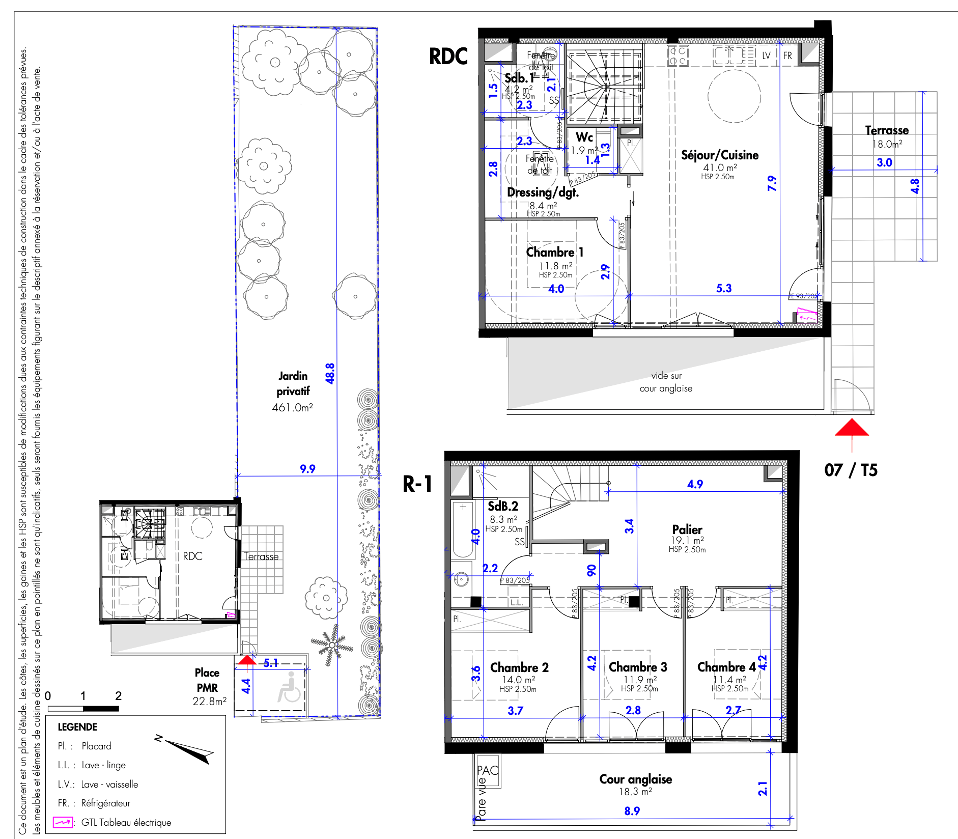
Cette belle maison en duplex inversé de 132 m² entièrement rénovée, va vous sédurie par son vaste jardin de 450 m², véritable havre de paix en pleine ville, et par sa terrasse plein sud de 18 m² qui prolonge une lumineuse pièce de vie de 41 m² avec séjour et cuisine ouverte.

L'étage principal accueille également une grande chambre, un dressing, une salle de bain élégante et des WC séparés.

Au niveau inférieur, vous trouverez trois chambres supplémentaires, une deuxième salle de bain et un espace de vie, le tout ouvrant sur une charmante cour anglaise de 18 m² : un espace extérieur intime.

Maison entièrement rénovée
Chauffage par pompe à chaleur
Place de stationnement PMR

Pour tout renseignement ou visite, contactez Sandrine VOULOUZAN au o611491791

(Les honoraires sont à la charge du vendeur)

TRAD_ZEPHYR_Caracteristique TRAD_ZEPHYR_Valeurs
Code postal 69003
surface terrain 450 m²
Surface loi Carrez (m²) 132 m²
Nombre de chambre(s) 4
Nombre de pièces 5
Nombre de niveaux 1
Ascenseur NON
TRAD_ZEPHYR_Caracteristique TRAD_ZEPHYR_Valeurs
Nb de salle de bains 1
Nb de salle d'eau 1
Mode de chauffage Pompe à chaleur
Type de chauffage Au sol
Format de chauffage Individuel
Murs mitoyens 1
Nombre de parking 1
Année de construction 2025
TRAD_ZEPHYR_Caracteristique TRAD_ZEPHYR_Valeurs
Copropriété NON
TRAD_ZEPHYR_Caracteristique TRAD_ZEPHYR_Valeurs
Prix de vente 799 000 €
Les honoraires d'agence seront intégralement à la charge du vendeur  
DPE GES
Contacter pour ce bien
L'agence
Téléphone 04 69 84 15 15
Adresse
19 rue des Rosiéristes 69410 Champagne-au-Mont-d'Or

* Champ obligatoire

Les informations recueillies sur ce formulaire sont enregistrées dans un fichier informatisé par La Boite Immo agissant comme Sous-traitant du traitement pour la gestion de la clientèle/prospects de l'Agence / du Réseau qui reste Responsable du Traitement de vos Données personnelles. La base légale du traitement repose sur l'intérêt légitime de l'Agence / du Réseau. Elles sont conservées jusqu'à demande de suppression et sont destinées à l'Agence / au Réseau. Conformément à la loi « informatique et libertés », vous disposez des droits d’accès, de rectification, d’effacement, d’opposition, de limitation et de portabilité de vos données. Vous pouvez retirer votre consentement à tout moment en contactant directement l’Agence / Le Réseau. Consultez le site https://cnil.fr/fr pour plus d’informations sur vos droits. Si vous estimez, après avoir contacté l'Agence / le Réseau, que vos droits « Informatique et Libertés » ne sont pas respectés, vous pouvez adresser une réclamation à la CNIL. Nous vous informons de l’existence de la liste d'opposition au démarchage téléphonique « Bloctel », sur laquelle vous pouvez vous inscrire ici : https://www.bloctel.gouv.fr Dans le cadre de la protection des Données personnelles, nous vous invitons à ne pas inscrire de Données sensibles dans le champ de saisie libre.
Ce site est protégé par reCAPTCHA, les Politiques de Confidentialité et les Conditions d'Utilisation de Google s'appliquent.

Découvrir nos outils